VILLA in zona San Bartolomeo a Reggio Emilia
Importante villa singoila con 700 mq di giardino esclusivo. Le…
In vendita
575.000€
N. di Riferimento: R4528
Categoria: Villa
L’eleganza dello stile moderno ai piedi della collina
Situata in una delle zone più richieste delle pedecollina, comoda al centro del paese e con i servizi a due passi, proponiamo una villa singola in stile moderno di nuova edificazione, dotata di tutte le nuove tecnologie costruttive che garantiscono efficienza e sostenibilità.
La progettazione degli spazi e la distribuzione degli ambienti sono stati pensati per la massima funzionalità e privacy, garantendo il benessere di tutta la famiglia.
Il cuore della casa si sviluppa a piano terra: 70 mq a disposizione per il tuo living, con superfici accessorie, ben collegato al giardino – di circa 400 mq- creando così un dialogo continuo tra interno ed esterno.
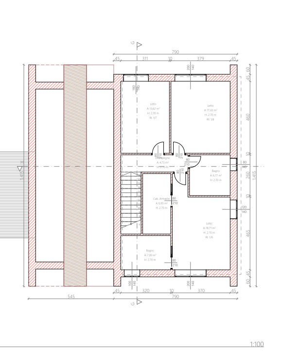
Al primo piano l’area privata offre il massimo del comfort: una suite esclsuiva di 32 mq suddivisa tra camera padronale con doppia esposizione, cabina armadio e bagno finestrato; altre due camere matrimoniale ampie servite da ulteriore bagno.
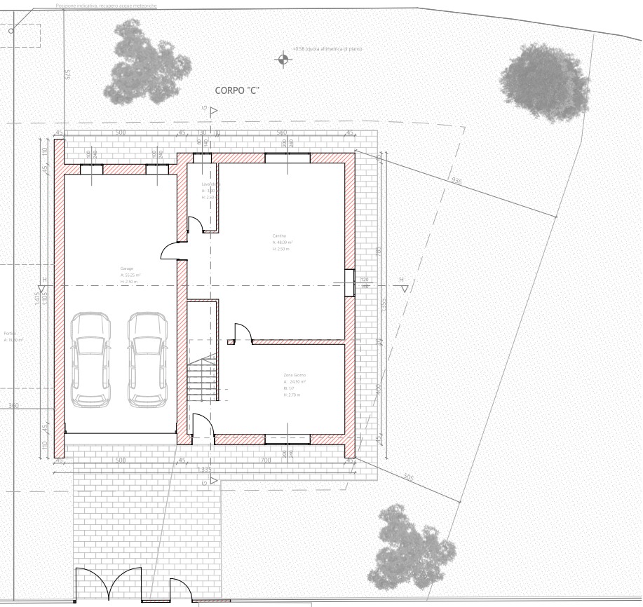
Adiecente alla villa, con tetto sfalsato che dona movimento all’architettura pulita e lineare dell’abitazione, autorimessa di mq 55, doppia sia in larghezza che in lunghezza.
La generosità di questo ambiente permette di ricavare un ulteriore spazio da dedicare ai propri hobby e al proprio tempo libero.
Perchè scegliere questa villa?
– Stile Contemporaneo: linee pulite, materiali di pregio e tecnologie costruttive di ultima generazione.
– Ampie metrature: indipendenza totale per la famiglia sia all’interno che all’esterno dell’abitazione.
– Location Strategica: la tranquillità della pedecollina unita alla vicinanza del centro del paese e della città.
Vivi il futuro, oggi. Una casa che non è solo un luogo ma un’esperienza quotidiana di bellezza e comfort.
Contattaci subito per visionare il progetto e scoprire come personalizzare la tua nuova villa!
| Dimensione: | 260 Mq |
|---|---|
| Camere: | 3 |
| Zona: | Montecavolo |
| Riscaldamento: | A PAVIMENTO |
| Bagni: | 3 |
| Balconi: | No |
| Ascensore: | No |
| Classe Energetica: | A4 |
Importante villa singoila con 700 mq di giardino esclusivo. Le…
575.000€
N. di Riferimento: R4528
Situata in una delle zone più ricercate della fascia pedecollinare,…
715.000€
N. di Riferimento: R4772
Immobiliare Pellini propone nel centro di Castelnovo di Sotto, in…
375.000€
N. di Riferimento: R4696
Vicino al centro di Montecchio, in posizone strategica nei pressi…
485.000€
N. di Riferimento: R4524
In pieno centro a Bibbiano, vicino a tutti i servizi,…
385.000€
N. di Riferimento: R4783
In quartiere residenziale e in strada chiusa proponiamo n. 3…
450.000€
N. di Riferimento: R4765
VILLA ABBINATA in zona Montecavolo a Quattro Castella