SCHIERA CENTRALE in zona Montecavolo a Quattro Castella
Stai cercando una soluzione indipendente in centro a Montecavolo?! Di…
In vendita
425.000€
N. di Riferimento: R4485
Categoria: Schiera centrale
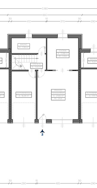
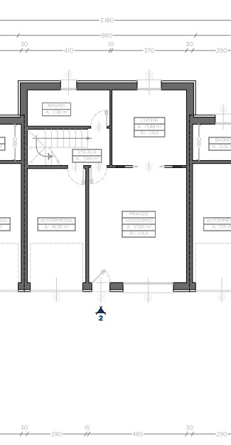
In quartiere residenziale e in strada chiusa proponiamo villa centrale su due livelli fuori terra con ampio giardino esclusivo.
Il nuovo intervento in Classe A4, garantisce efficenza, sostenibilità, risparmio energetico e il massimo del comfort.
La zona giorno dispone di un luminoso e ampio salone, una cucina abitabile, a vista o separata, per una metratura complessiva di 40 mq circa, oltre ad un bagno.
La zona notte invece è composta da tre camere matrimoniali, di cui una di 18 mq, un secondo bagno oltre al balcone accessibile da due camere da letto.
Completa l’abitazione un’ampia autorimessa e il giardino di 100 mq circa.
Chiamaci per avere informazioni aggiuntive!
| Dimensione: | 150 Mq |
|---|---|
| Camere: | 3 |
| Zona: | Fogliano |
| Riscaldamento: | A PAVIMENTO |
| Bagni: | 2 |
| Balconi: | 1 |
| Ascensore: | No |
| Giardino: | Si |
| Mq. Giardino: | 100 |
| Classe Energetica: | A4 |
Stai cercando una soluzione indipendente in centro a Montecavolo?! Di…
425.000€
N. di Riferimento: R4485
A soli 5 minuti dal centro di Viano, proponiamo una…
355.000€
N. di Riferimento: R4764
CASA SINGOLA in zona Cadelbosco di Sopra a Cadelbosco di Sopra