LABORATORIO in zona Rosta Nuova a Reggio Emilia
Cedesi attività di gelateria artigianale con laboratorio e magazzino annessi.…
In vendita
150.000€
N. di Riferimento: C0077
Categoria: Laboratorio
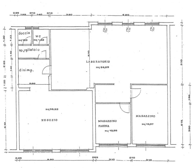
In Zona Regina Pacis proponiamo in esclusiva negozio/laboratorio di mq 145.
L’immobile è composto da una zona di vendita, un laboratorio di 55 mq, 2 magazzini, locali spogliatoio e servizi.
Al piano interrato una cantina.
Riscaldamento sia centralizato che con pompa di calore invertibile caldo/freddo.
CHIAMA il consulente di riferimento: Stefano 340.62.12.774
| Dimensione: | 145 Mq |
|---|---|
| Ascensore: | No |
| Riscaldamento: | CENTRALIZZATO |
| Classe Energetica: | G |
Cedesi attività di gelateria artigianale con laboratorio e magazzino annessi.…
150.000€
N. di Riferimento: C0077
Stai cercando un immobile per la tua attività? Abbiamo una…
79.000€
N. di Riferimento: C0182
In Zona Regina Pacis proponiamo in esclusiva negozio/laboratorio di mq…
99.000€
N. di Riferimento: C0185
VILLA ABBINATA in zona Montecavolo a Quattro Castella